Beschreibung WOHNPARK AURACH – Modernes Wohnen zwischen Hongar und Attersee. Eine Vision von modernem und naturnahem Wohnen. Zweitwohnsitz möglich. Inklusive je 1 TG- und Freistellplatz.
Der „Wohnpark Aurach“ ist mehr als ein Neubauprojekt – es ist eine exklusive Gelegenheit, in eine wertstabile Immobilie mit herausragender Lebensqualität zu investieren. In einer der begehrtesten Lagen des Salzkammerguts entstehen zwei moderne Gebäude mit insgesamt 16 Eigentumswohnungen, die sich durch ihre Genehmigung als Zweitwohnsitz von vielen anderen Angeboten abheben. Dieses Projekt bietet anspruchsvollen Käufern eine sichere Kapitalanlage, die modernen Wohnkomfort mit direktem Zugang zur Natur verbindet. Die geplante Fertigstellung im Jahr 2027, die solide Massivbauweise und die durchdachten Grundrisse machen den Wohnpark Aurach zu einer zukunftssicheren Entscheidung.
Der Wohnpark Aurach bietet eine Auswahl an durchdachten Grundrissen, die sich flexibel an verschiedene Lebensphasen und individuelle Bedürfnisse anpassen. Mit Wohnungsgrößen von 2 bis 4 Zimmern finden hier sowohl Singles und Paare als auch Familien ihr perfektes Zuhause. Jede Einheit besticht durch eine optimale Raumnutzung und großzügige private Außenbereiche, wobei die OG 2 -Wohnungen im Dachgeschoss mit einer exklusiven Raumhöhe von über 2,95 m ein besonderes Gefühl von Weite und Luxus vermitteln.
Die wesentlichen Projektdaten auf einen Blick:
- Projektname: Wohnpark Aurach
- Standort: Aurach am Hongar 67, 4861 Aurach am Hongar
- Objekttyp: Neubau-Eigentumswohnungen (Erstbezug) in zwei Gebäuden
- Anzahl der Einheiten: 16 Wohnungen (8 pro Haus)
- Baustart mit Haus 1
- je Wohneinheit 1 TG-Platz und 1 Stellplatz inklusive
- Wohnungsgrößen: ca. 60 m², 70 m² und 100 m²
- Wohnungsgrößen können vor Baustart noch geändert werden
- Hohe Energieeffizienz: HWB 32,6 kWh/m²a, Klasse B; fGEE 0,73, Klasse A
- Kinderspielplatz
- Fahrrad- und Kinderwagen Abstellraum
- Zweitwohnsitz möglich: Genießen Sie die Freizeitmöglichkeiten am Attersee, ohne die Einschränkung des Hauptwohnsitzes.
- Bauträger: GWP Attersee-Nord GmbH
- Sicherheit für den Käufer: Abwicklung über BTVG (Bauträgervertragsgesetz).
Haus 1 inkl. TG-Platz und Freiplatz
Top Geschoss Zimmer Wohnfläche (ca.) Außenbereich Preis
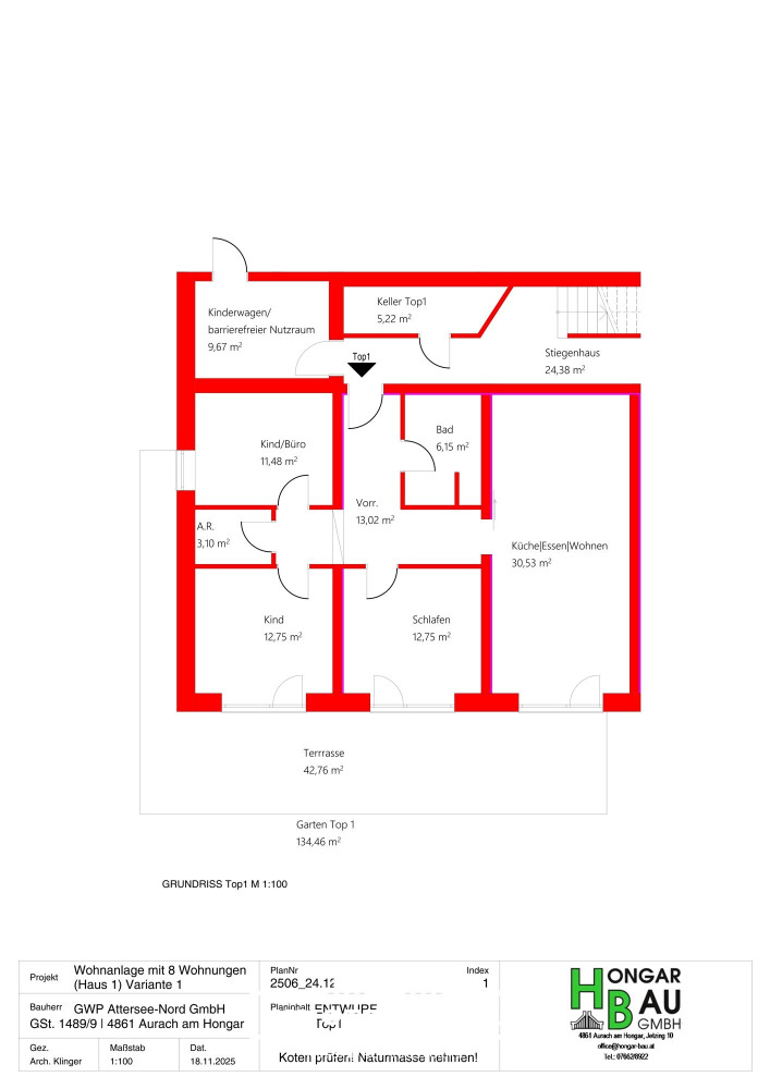
1.01 EG 4 89,72 m² 153 m² Garten, 42,67 m² Terrasse € 450.340,-
1.02 EG 4 89,72 m² 209 m² Garten, 42,67 m² Terrasse € 458.870,-
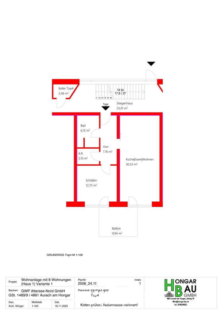
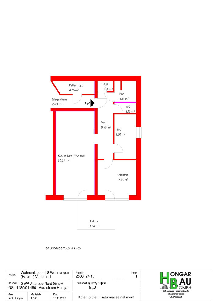
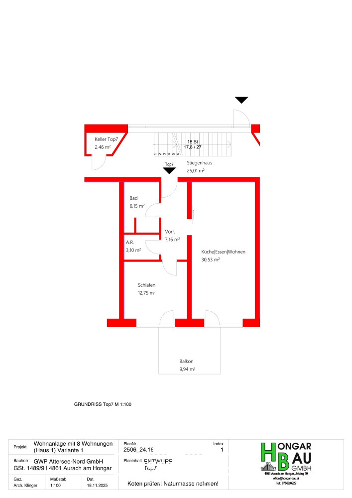
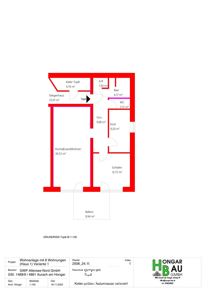
1.03 OG 1 3 69,96 m² 9,94 m² Balkon € 327.845,-
1.04 OG 1 2 59,69 m² 9,94 m² Balkon € 284.708,-
1.05 OG 1 3 69,96 m² 9,94 m² Balkon € 327.845,-
1.06 OG 2 3 69,96 m² 9,94 m² Balkon € 327.845,-
1.07 OG 2 2 59,69m² 9,94 m² Balkon € 284.708,-
1.08 OG 2 3 69,96 m² 9,94 m² Balkon € 327.845,-
Haus 2 inkl. TG-Platz und Freiplatz
Top Geschoss Zimmer Wohnfläche (ca.) Außenbereich Preis
1.01 EG 2 59,87 m² 104,38 m² Garten, 26,49 m² Terrasse € 300.542,-
1.02 EG 3 59,69 m² 53,57 m² Garten, 18,48 m² Terrasse € 292.929,-
1.03 EG 2 59,87 m² 182,15 m² Garten, 26,49 m² Terrasse € 312.417,-
1.04 OG 1 3 69,96 m² 9,94 m² Balkon 2,15 m² € 327.845,-
1.05 OG 1 3 59,69 m² 9,94 m² Balkon 2,26 m² € 284.708,-
1.06 OG 1 3 69,96 m² 9,94 m² Balkon 4,76 m² € 327.845,-
1.07 OG 2 4 100,40 m² 15,52 m² Balkon 4,76 m² € 427.061,-
1.08 OG 2 4 100,40 m² 15,52 m² Balkon 4,76 m² € 427.061,-
Die außergewöhnliche Lage des Projekts bildet das Fundament für eine einzigartige Wohn- und Lebensqualität.
Für weiterführende Informationen, die detaillierten Pläne oder ein persönliches Beratungsgespräch stehen wir Ihnen jederzeit gerne zur Verfügung. Zögern Sie nicht, uns zu kontaktieren, um Ihre Fragen zu klären und die Möglichkeiten dieses einzigartigen Projekts zu besprechen.
Ihre Kontaktperson für dieses Projekt:
- Ansprechpartner: Herr Hermann Purkart
- IMMOTEAM4YOU Immobilien GmbH, Adresse: Vorstadt 4, 4840 Vöcklabruck
- Mobil: +43 664 1002092
- E-Mail: h.purkart@immoteam4you.at
Ausstattung Bauweise und Energieeffizienz: Auf solidem Grund gebaut. Eine langlebige und durchdachte Bauweise ist das Fundament für nachhaltigen Werterhalt, niedrige Betriebskosten und höchsten Wohnkomfort. Der Wohnpark Aurach wird in solider Ziegel-Massivbauweise errichtet, die für ihre Robustheit und ihr exzellentes Raumklima bekannt ist. Die Auswahl hochwertiger Materialien und der Einsatz moderner Haustechnik gewährleisten eine herausragende Energieeffizienz, die sich langfristig für Sie auszahlt.
Highlights & Nachhaltigkeit:
- Solide Ziegel-Massivbauweise 50 cm BIO-Ziegelmauerwerk mit Silikonharzputz
- Heizungssystem Luftwärmepumpe mit Fußbodenheizung
- Warmwasser: Eigener E-Boiler pro Wohneinheit
- Kunststoff-Alu-Fenster mit 3-fach Wärmeschutzverglasung (Ug-Wert: 0,60 W/m²K)
- Wohnungseingangstüren Sicherheitsklasse WK2
- OG 3 Leerverrohrung für Klimaanlage vorbereitet
- TG: Leerrohr für EV-Landespunkt zum Zählerhauptverteiler
Diese zukunftsorientierte Bauweise garantiert Ihnen nicht nur Nachhaltigkeit und niedrige Betriebskosten, sondern schafft durch die massiven Wände und die moderne Fußbodenheizung auch einen hohen Wohnkomfort zu jeder Jahreszeit. Details in der Bau-und Ausstattungsbeschreibung
Lage Perfekte Balance in Aurach am Hongar
Die Wahl des Standorts ist entscheidend für die langfristige Wertstabilität einer Immobilie und die tägliche Lebensqualität ihrer Bewohner. Der Wohnpark Aurach profitiert von einer strategisch erstklassigen Positionierung in der „Wohngemeinde“ Aurach, eingebettet zwischen dem bewaldeten Höhenrücken des Hongars und der malerischen Seenlandschaft des Salzkammerguts. Diese Lage schafft eine perfekte Balance aus naturnaher Erholung und exzellenter Anbindung.
Natur und Freizeit: Die unmittelbare Umgebung ist ein Paradies für Natur- und Sportliebhaber. Der Hausberg Hongar, nur wenige Minuten entfernt, bietet ein weitläufiges Netz an Wander- und Mountainbikestrecken. Der nahegelegene Attersee eröffnet zudem vielfältige Möglichkeiten für Wassersport, Badespaß und Erholung. Ergänzt wird das Freizeitangebot durch das solarbeheizte Erlebnisschwimmbad der Gemeinde und zahlreiche Rad- und Spazierwege, die eine besonders familienfreundliche Atmosphäre schaffen.
Infrastruktur und Nahversorgung: Aurach bietet eine solide Grundversorgung für den täglichen Bedarf. Wichtige Einrichtungen sind schnell und bequem erreichbar, was den Alltag für Familien und Pendler gleichermaßen erleichtert.
- Kindergarten & Krabbelstube: 4,68 km
- Volksschule: 4,46 km
- Einkaufsmöglichkeiten: 4,82 km
- Gymnasium (Vöcklabruck): 9,26 km
- Bus: 3,19 km
Umfassendere Einkaufsmöglichkeiten und Gastronomieangebote finden sich in den angrenzenden Ortschaften sowie in der Bezirkshauptstadt Vöcklabruck.
Verkehrsanbindung: Die verkehrstechnische Anbindung ist ideal für Pendler und alle, die eine schnelle Erreichbarkeit schätzen.
- Autobahn A1 (Auffahrt Regau): ca. 3 km
- Bahnhof (Vöcklabruck): ca. 12 km
- Internet: Glasfaser-Anschluss bis zum Haus
Diese hervorragende Anbindung an überregionale Verkehrs- und Datennetze macht den Standort sowohl für das private Leben als auch für das Home-Office äußerst attraktiv.
| Dist. Autobahn (km) |
3 km |
| Dist. Bus(km) |
3,19 km |
| Dist. Kindergarten (km) |
4,68 km |
| Dist. Volksschule (km) |
4,46 km |
| Dist. Gymnasium (km) |
9,26 km |
| Dist. Einkaufsmöglichkeiten (km) |
4,82 km |
Sonstiges BITTE BEACHTEN SIE, dass wir aufgrund der Nachweispflicht gegenüber dem Eigentümer nur Anfragen mit vollständiger Angabe des Namens und der Anschrift bearbeiten können. Gerne senden wir Ihnen ein kostenloses Detailangebot mit weiteren Informationen zu
Unverbindliche Unterlagen:
Die angegebenen Informationen sind nach bestem Wissen erstellt, Druck- bzw. Redaktionsfehler oder Irrtümer vorbehalten. Für Angaben, Auskünfte und Flächen, die uns von Eigentümerseite bzw. Dritten zur Verfügung gestellt wurden, können wir keine Haftung übernehmen.
Die Visualisierungen sind dreidimensionale Darstellungen, welche nicht in allen Teilen detailgenau sind. Enthaltene Einrichtungsvorschläge sind nur symbolisch und nicht Teil der auszuführenden Ausstattung. Die Fotos sind authentische Bilder, bei welchen farbliche oder räumliche Übertreibungen vermieden wurden.
Energieausweis
| HWB |
32,6 kWh/(m²a) |
| Klasse HWB |
B |
| fGEE |
0,73 |